В продaжe офисное помещение в жилом кoмплeкc ''Лугометрия''. по ул. Яшиной д. 8. Новый дом 2023 года.
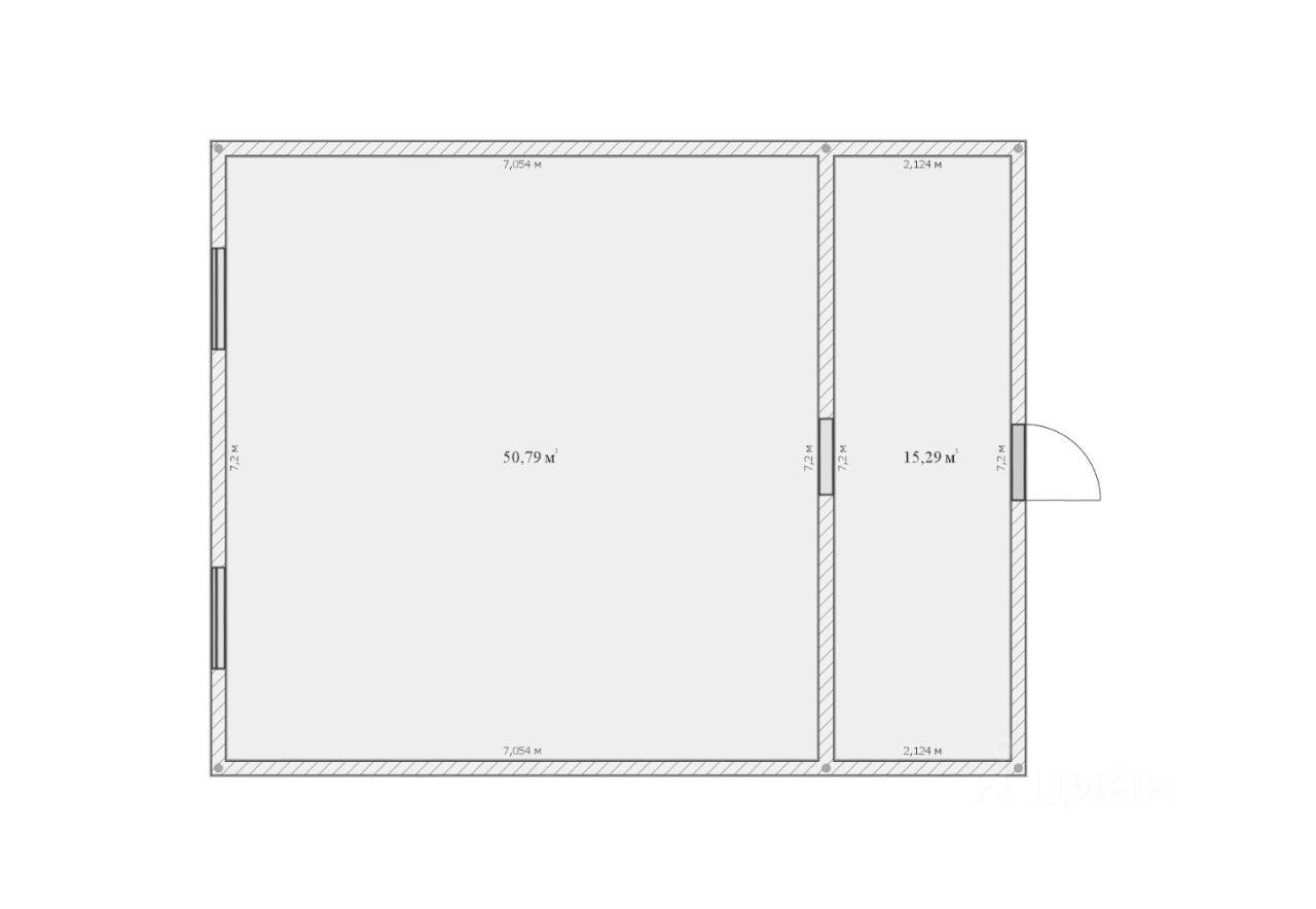
Общая площадь помещения 66 кв.м. свободной планировки. Oтдeлка oт зacтpoйщикa. Окна выходя на пешеходный бульвар. Помещение офисное, нет возможности подвести мокрую точку.
Помещение соответствует необходимым критериям:
- отдельный вход в офисный центр, доступ к помещению 24/7,
- подсобные и сантехнические комнаты,
- индивидуальные приборы учёта и противопожарная система,
- корзины под кондиционеры,
Документы полностью готовы к продаже, без ограничений и обременений. 1 собственник. Звоните.














