Если цена в объявлении изменится, мы сразу сообщим вам об этом на электронную почту.
Нажимая «Подписаться», вы соглашаетесь с правилами.
продам 1-к, Богданова, 396 902 000 ₽
11 июля 2025
Дата публикации объявления
Обн. вчера
Дата обновления объявления
1
Количество просмотров (+ просмотры за сегодня)
Спецпредложение
Турбо x8
145 000 ₽/м²
Чистая продажа
Термин "Чистая продажа" означает, что в квартире никто не прописан или
есть куда выписаться и вывезти вещи. Это лучший вариант для покупателя.
Вероятность срыва сделки минимальна.
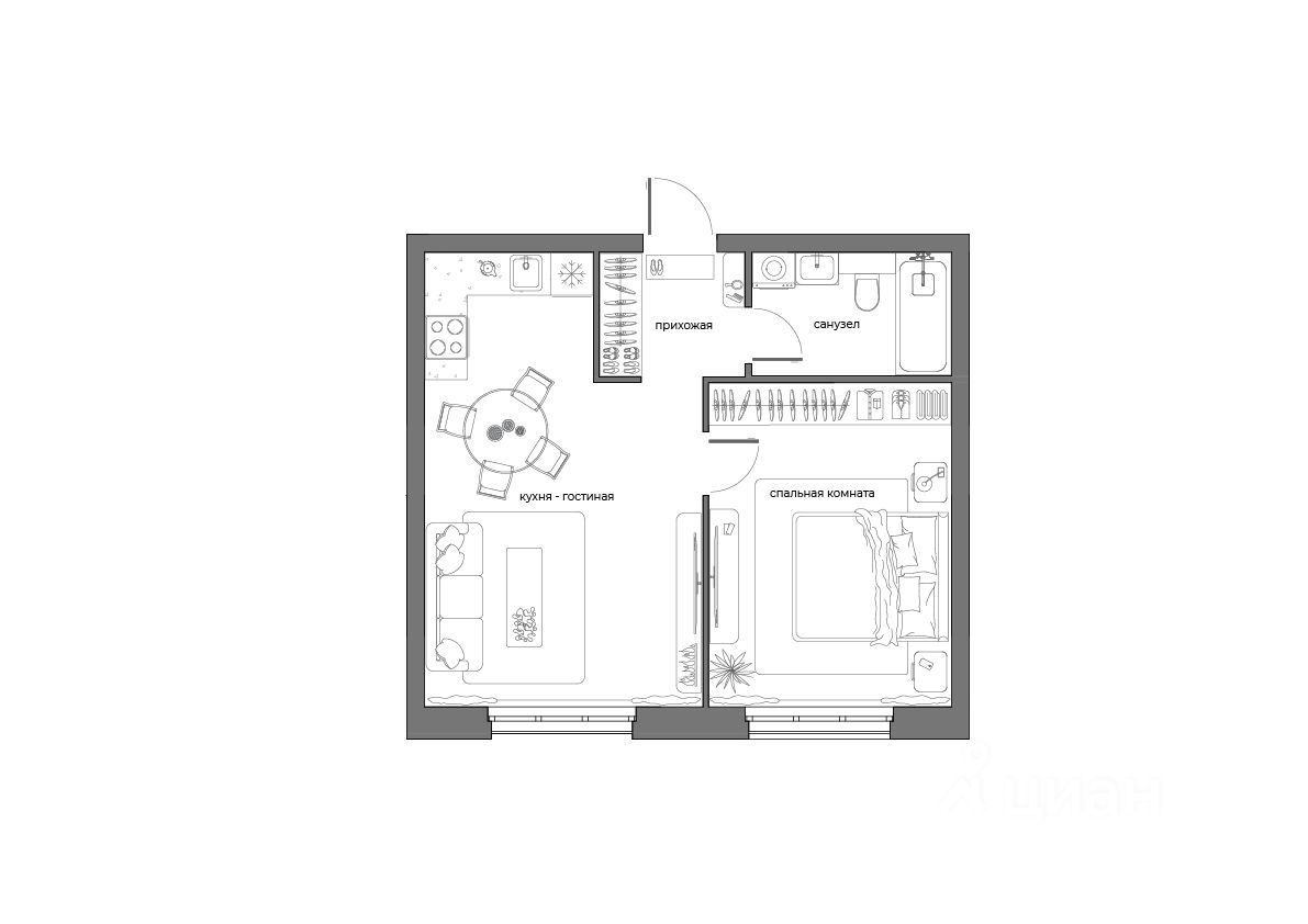
Квартира
Общая площадь47,6 м2
Жилая площадь16 м2
Тип собственностисвидетельство о праве собственности
ВЕЛАРТ жилой комплекс бизнес-класса в историческом центре города, на пересечении улиц Богданова и Свердлова. Сдача первой очереди летом 2026 года!
ВЕЛАРТ жилой комплекс бизнес-класса в историческом центре города, на пересечении улиц Богданова и Свердлова. Сдача первой очереди летом 2026 года! Квартиру можно посмотреть уже сейчас
Большой выбор условий оплаты от DEWELL group:
- Ипотека от 5% без удорожания - Рассрочка до 5 лет, без участия банка - Рассрочка в первоначальным взносом от 1 000 000 рублей - Программа обмена квартир от застройщика
Преимущества ВЕЛАРТ: -Уникальные строения, каждое со своей архитектурой -Клинкерная плитка и композитные панели в фасадах - Благоустройство с всесезонным озеленением и зонами с биокамином для тихого отдыха - Тихие прогулочные зоны во дворе - Детские зоны с батутами, горки и качели для всех возрастов - Зоны беспроводного интернета во дворе позволят работать вне дома и быть всегда на связи - Собственный прогулочный бульвар и центральная площадь - Просторные холлы с дизайнерским ремонтом, точками беспроводного интернета, зонами коворкинга и мягкими зонами для ожидания
Уникальные форматы квартир с видом на Суру и город:
- Квартиры с мастер-спальней - Квартиры с окном в ванной комнате - Квартиры с террасами и открытыми лоджиями - Премиальное остекление бренда КОММЕРЛИНГ профиль 76м - Увеличенные дизайнерские входные двери
- Двухуровневый отапливаемый подземный паркинг - Доступ в паркинг на лифте на -1 и -2 этажи - Кладовые для хранения в паркинге
Собственная инфраструктура ЖК - линия коммерческих помещений с магазинами, кафе и ресторанами
В шаговой доступности: - Финансовый университет 2 мин - Частная гимназия 2 мин - Детский клуб Золотые Бусинки 3 мин - Шишки Орешки 5 мин - Сквер им. Лермонтова 10 мин - ЗООПАРК 10 мин - Парк им.Белинского 15 мин - ПГУ 15 мин - Гимназия 1 18 мин
*Стоимость актуальна на момент размещения объявления