Если цена в объявлении изменится, мы сразу сообщим вам об этом на электронную почту.
Нажимая «Подписаться», вы соглашаетесь с правилами.
продам 1-к, Олимпийская, 114 290 000 ₽
25 янв
Дата публикации объявления
Обн. вчера
Дата обновления объявления
3
Количество просмотров (+ просмотры за сегодня)
Топ
116 894 ₽/м²
Чистая продажа
Термин "Чистая продажа" означает, что в квартире никто не прописан или
есть куда выписаться и вывезти вещи. Это лучший вариант для покупателя.
Вероятность срыва сделки минимальна.
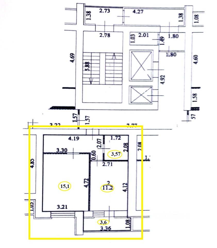
Продам 1 ком. квартиру в ЖК Петровский квартал (микрорайон Спутник)
Засечное, Олимпийская, дом 11
* Квартира расположена на 5 этаже кирпичного дома 2015 года постройки.
Средний подъезд, 2 лифта.
* Площадь квартиры 36,7 кв.м. + лоджия 3,6 кв.м. (всё вместе 40,3 кв.м.)
* Отличная планировка, в которой большая кухня с выходом на лоджию!
(Площадь кухни 11,2 кв.м., лоджия 3,6 кв.м.)
Комната среднего размера - 15,1 кв.м.
Просторная прихожая в которой можно выделить гардеробную зону!
Сан.узел совмещенный 3,57 кв.м.
Продам 1 ком. квартиру в ЖК Петровский квартал (микрорайон Спутник)
Засечное, Олимпийская, дом 11
* Квартира расположена на 5 этаже кирпичного дома 2015 года постройки.
Средний подъезд, 2 лифта.
* Площадь квартиры 36,7 кв.м. + лоджия 3,6 кв.м. (всё вместе 40,3 кв.м.)
* Отличная планировка, в которой большая кухня с выходом на лоджию!
(Площадь кухни 11,2 кв.м., лоджия 3,6 кв.м.)
Комната среднего размера - 15,1 кв.м.
Просторная прихожая в которой можно выделить гардеробную зону!
Сан.узел совмещенный 3,57 кв.м.
* Квартира с предчистовой отделкой от застройщика, сделана разводка электрики по квартире,стяжка пола, стены оштукатурены, собственником выполнено шпаклевание стен для последующей поклейки обоев.
* Отличное расположение дома! Начало микрорайона Спутник, в 10 минутах ходьбы Набережная города Спутник, в доме и округе много магазинов и есть абсолютно всё для жизни, также в нескольких минутах ходьбы инфраструктура Терновки.
Хороший семейный дом, отличный ЖК с развитой территорией для жизни.