Если цена в объявлении изменится, мы сразу сообщим вам об этом на электронную почту.
Нажимая «Подписаться», вы соглашаетесь с правилами.
продам дом, Анатолия Макарова, 88 150 000 ₽
31 янв
Дата публикации объявления
Обн. 21 мая
Дата обновления объявления
2
Количество просмотров (+ просмотры за сегодня)
108 812 ₽/м²
Чистая продажа
Термин "Чистая продажа" означает, что в квартире никто не прописан или
есть куда выписаться и вывезти вещи. Это лучший вариант для покупателя.
Вероятность срыва сделки минимальна.
Этажей1
Площадь участка9 соток
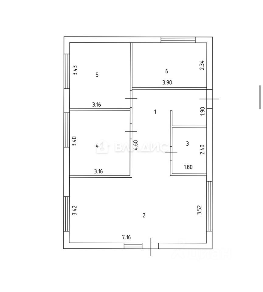
Общая площадь74,9 м2
ЭлектричествоЕсть
Газоснабжениецентральное
Код объекта: 1919495. Уникальное предложение для тех, кто ищет комфортное жильё недалеко от города! Продаётся уютный дом в посёлке Мичуринский Пензенского района, по ул. Победы, 8.
Подходит под программу Семейная ипотека! Возможен обмен на вашу недвижимость.
Общая площадь дома - 74,9 кв. м Три комнаты - 10,7 + 10,7 + 9,1 кв. м Просторная кухня-гостиная - 25 кв. м
Высота потолков — 3 метра, что создаёт ощущение простора. Евроремонт позволит вам сразу заселиться и наслаждаться новым домом.
Дом построен в 2024 году из пеноблоков, перекрытия — железобетонные плиты. Мягкая черепица на крыше обеспечивает надёжную защиту. Все коммуникации (электричество, водоснабжение, газ, канализация) подведены.
Код объекта: 1919495. Уникальное предложение для тех, кто ищет комфортное жильё недалеко от города! Продаётся уютный дом в посёлке Мичуринский Пензенского района, по ул. Победы, 8.
Подходит под программу Семейная ипотека! Возможен обмен на вашу недвижимость.
Общая площадь дома - 74,9 кв. м Три комнаты - 10,7 + 10,7 + 9,1 кв. м Просторная кухня-гостиная - 25 кв. м
Высота потолков — 3 метра, что создаёт ощущение простора. Евроремонт позволит вам сразу заселиться и наслаждаться новым домом.
Дом построен в 2024 году из пеноблоков, перекрытия — железобетонные плиты. Мягкая черепица на крыше обеспечивает надёжную защиту. Все коммуникации (электричество, водоснабжение, газ, канализация) подведены. Водоснабжение от скважины, отопление обеспечивается индивидуальным котлом, что позволяет эффективно управлять расходами.
Дом идеально подходит для круглогодичного проживания. Не упустите возможность стать владельцем этого уютного дома! Звоните нам прямо сейчас, чтобы узнать больше и записаться на просмотр. Мы гарантируем безопасную сделку и юридическую поддержку нашим Клиентам. Поможем одобрить ипотеку с сниженной ставкой.