1-к, Революционная, 34 Показать на карте
Ленинский район
Пенза
Рассрочка 5 лет на квартиры в квартале Svoboda!Проект бизнес-класса от Строительной группы Рисан расположился в самом сердце города на пересечении улиц Революционной и Ставского.В пешей доступности все главные достопримечательности города: дворец водногоспорта ''Сура'', Пензенский областной драматический театр, улица Московская.Теперь никакой дистанции между городом и тобой. Семь причин переехать в новый квартал: - Уникальные форматы планировок с террасами и вторым светом - Двухъярусный двор без машин - Потолки до 6 метров! - Подземный паркинг с эко-площадкой для раздельного сбора мусора - Холлы с колясочными и велосипедными. - Бизнес-гостиные на 1 этаже - Современная система безопасности и личный доступ к камерам - ''Умный дом'' в базовой комплектации в каждой квартире!
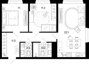
48 м2
8 / 16 этаж
Кирпич - монолит
- Показать контакты
- Добавить в избранное
48 м2
8 / 16 этаж
Кирпич - монолит
6 984 000
144 000 /м2
Новостройка,
дом сдан
дом сдан
