3-к, Свердлова 2-й проезд, 4 Показать на карте
Первомайский район
Пенза
Рассрочка 5 лет на квартиры в квартале Модернист! Жилой комплекс ''Модернист'' строится на улице Свердлова, удаленно от шумной среды в непосредственной близости к образовательному и культурному кластеру. Здесь каждая деталь помогает жить, отдыхать и располагает работать плодотворно и с вдохновением.Квартирография проекта - это односпальные, двухспальные, трехспальные и квартиры-студии - любая площадь обеспечивает рациональное использование жилого пространства, уют и комфорт для всех членов семьиДетали проекта:- 2 башни в 19 и 24 этажа,- Торговая линия на 1 этаже,- Панорамное угловое остекление лоджий,- Террасы на высоких этажах с панорамными видами,- Галерея закатов на 24 этаже,- Лаундж-патио на 2 этаже,- Благоустроенный двор с многофункциональным зонированием,- 110 кладовых помещений,- Подземный паркинг на 189 машино-мест,- Большой выбор планировочных решений,- Закрытый двор и собственная система безопасности.Узнайте больше о новом проекте бизнес-класса на бесплатной консультации в наших офисах продаж. Проектная декларация размещена на сайте единой информационной системы жилищного строительства наш.дом.рф.
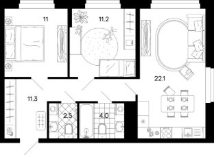
80 м2
16 / 24 этаж
Кирпич - монолит
- Показать контакты
- Добавить в избранное
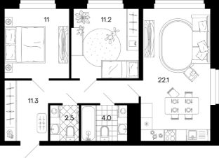
80 м2
16 / 24 этаж
Кирпич - монолит
9 627 100
119 000 /м2
Новостройка,
II-2027
II-2027
