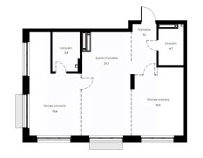
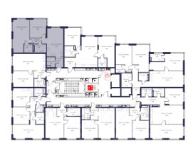
2-к, Богданова, 39 Показать на карте
Первомайский район
Пенза
ВЕЛАРТ жилой комплекс бизнес-класса в историческом центре города, на пересечении улиц Богданова и Свердлова. Сдача первой очереди летом 2026 года! Квартиру можно посмотреть уже сейчас Большой выбор условий оплаты от DEWELL group:- Ипотека от 5% без удорожания - Рассрочка до 5 лет, без участия банка- Рассрочка в первоначальным взносом от 1 000 000 рублей- Программа обмена квартир от застройщика Преимущества ВЕЛАРТ:-Уникальные строения, каждое со своей архитектурой-Клинкерная плитка и композитные панели в фасадах- Благоустройство с всесезонным озеленением и зонами с биокамином для тихого отдыха- Тихие прогулочные зоны во дворе - Детские зоны с батутами, горки и качели для всех возрастов - Зоны беспроводного интернета во дворе позволят работать вне дома и быть всегда на связи- Собственный прогулочный бульвар и центральная площадь - Просторные холлы с дизайнерским ремонтом, точками беспроводного интернета, зонами коворкинга и мягкими зонами для ожидания Уникальные форматы квартир с видом на Суру и город: - Квартиры с мастер-спальней- Квартиры с окном в ванной комнате- Квартиры с террасами и открытыми лоджиями- Премиальное остекление бренда КОММЕРЛИНГ профиль 76м- Увеличенные дизайнерские входные двери- Двухуровневый отапливаемый подземный паркинг- Доступ в паркинг на лифте на -1 и -2 этажи - Кладовые для хранения в паркингеСобственная инфраструктура ЖК - линия коммерческих помещений с магазинами, кафе и ресторанамиВ шаговой доступности:- Финансовый университет 2 мин- Частная гимназия 2 мин - Детский клуб Золотые Бусинки 3 мин- Шишки Орешки 5 мин- Сквер им. Лермонтова 10 мин- ЗООПАРК 10 мин- Парк им.Белинского 15 мин - ПГУ 15 мин - Гимназия 1 18 мин *Стоимость актуальна на момент размещения объявления
80 м2
5 / 23 этаж
Кирпич - монолит
- Показать контакты
- Добавить в избранное
80 м2
5 / 23 этаж
Кирпич - монолит
10 940 449
136 585 /м2
Новостройка,
IV-2027
IV-2027
