Универсальное помещение
Максима Горького, 38/45 Показать на карте
Максима Горького, 38/45 Показать на карте
Ленинский район
Пенза
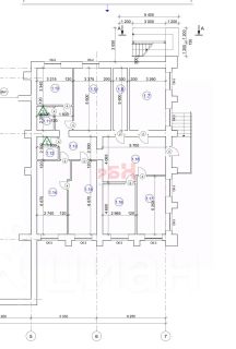
Просторное коммерческое помещение 82,1 м² в аренду в самом центре Пензы — ул. Максима Горького. Цена 86200 руб./мес. — прозрачные условия, долгосрочная аренда. Параметры помещения:-расположено на 1-м этаже жилого дома (всего 3 этажа).-вход с улицы совместный с другим арендатором, отдельный вход в помещение,- высота потолков 3 м,-косметический ремонт, удобное распределение комнат обеспечивает комфортную организацию рабочих зон, приёмных и кабинетов,-электричество 20 кВт,-вода разведена по кабинетам,-возможно установить свой санузел санузел,-кондиционеры,-оплата коммунальных услуг по счетчикам,Планировка подходит для:- медицинского центра,- представительства компании,- офиса,- салона красоты или творческого коворкинга.Помещение уже оборудовано под медицинский центр, что упрощает запуск клиники, лаборатории или смежных медицинских услуг.Объект расположен в деловом ядре города — жизнь в сердце города обеспечивает стабильный и предсказуемый поток клиентов. Интенсивные пешеходные и автомобильные потоки вдоль ул. Максима Горького формируют постоянную клиентскую базу, удобные подходы для пешеходов и высокая видимость фасада. Транспортная доступность включает развитую сеть городского транспорта: автобусные и маршрутные линии, удобный выезд на основные городские трассы и магистрали, что обеспечивает быстрый доступ для сотрудников и клиентов на автомобиле и общественном транспорте.Преимущества:- Выгодная цена — 1 050 руб./м² при центре города, прозрачные финансовые параметры сделки.- Долгосрочная аренда.- Готовность под медицинское назначение: инженерные мощности, планировка, вход с улицы.- 20 кВт электроэнергии — достаточно для современного медоборудования или интенсивного офисного использования.- Отдельный вход и открытая парковка повышают комфорт посетителей и безопасность.- Высота потолков 3 м и удобное распределение комнат — гибкость в размещении оборудования, рабочих зон и зон ожидания.- Расположение в жилом и деловом окружении — стабильный спрос и высокий пешеходный трафик.Это предложение оптимально для инвестиций в медицинский бизнес или для организации представительства/творческого кластера в центральной части города: готовая инфраструктура и выгодные условия аренды сокращают время до выхода на окупаемость.Чтобы организовать показ или получить коммерческое предложение с детальным планом и условиями аренды (аренда без комиссии), свяжитесь по телефону или оставьте заявку. Мы оперативно предоставим доступ на осмотр.Арт. 135502758
82 м2
- Показать контакты
- Добавить в избранное
82 м2
86 200 /мес.
1 049 /м2
